ID CP1100502

Zero comision, 360mp birou cladire premium, Piata Muncii, 8 minute [M]

ID CP1100502

4,680 € + 21% TVA

Spațiu de birouri de închiriat
Muncii, Bucuresti
360 mp

Imobil modern cu functiune birouri, inaugurat in anul 2017 la standarde clasa A si amplasat in proximitatea Piatei Muncii, ofera conditii optime de acomodare companiilor ce vizeaza zona central estica a orasului, un spatiu luminos si gata pentru preluare imediata.

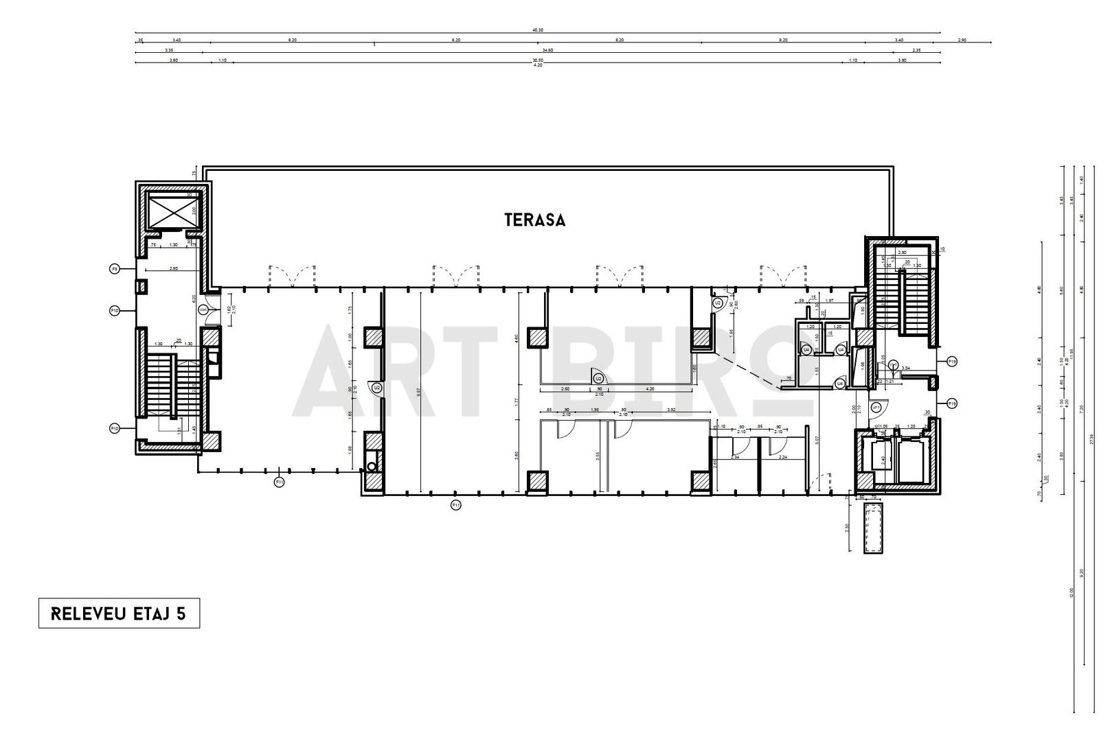
Spatiile disponibile: etaj 5 - 360mp plus terasa, iar formatul (conform releveu anexat) - zona receptie, 7 partitii cu suprafete de 77, 70, 32, 24, 11, 6, 6mp, bucatarie, camera server racita, 2 toalete exclusive. Partitiile de sticla fac parte din oferta. Spatiul se preda igienizat.

Suplimentar: etaj 1 (585mp).

Pretul chiriei este de 13 eur/mp, iar costuri administrative in valoare de 3.5 eur/mp. Parcare 100 eur/ unitate subterana, se pot aloca pana la 5 unitati. Se adauga TVA

Cladirea dispune de climatizare (ventiloconvectoare cu aport aer proaspat), geamuri care se deschid, generator sisteme vitale, serviciu receptie, paza permanenta si administrare, monitorizare, senzori detectie, acces securizat, 3 lifturi, parcare proprie subterana/ supraterana.

Accesul catre servicii transport se face rapid (distanta mers statie STB/ Metrou: 4/ 8' ([M] Piata Muncii)

Utilitati contorizate separat/ pro-rata, costurile fiind disponibile pentru evaluare.

Consultanta oferita pe intregul parcurs al procesului de relocare/ acomodare birou (analiza comparativa oferte, vizionari, clauze contractuale, servicii suport) este gratuita.

Citește mai mult

  • Tip imobil
    Clădire birouri
  • Etaj
    5
  • Număr băi
    2
  • Număr terase
    1
  • Suprafață utilă
    360 mp
  • Disponibilitate
    Imediat
  • Suprafață totală birouri
    360 mp
  • Compartimentare spațiu
    Flexibil
  • Număr etaje clădire
    5

Facilități

Acces pentru persoane cu dizabilități
Acces securizat parcare
Administrare și management imobiliar
Afișare logo pe clădire
Aport de aer proaspăt
Building management system
Cameră server
CCTV
Consumabile grupuri sociale
Contorizare separată
Control acces securizat pe bază de cartele
Curățenie exterioară
Curățenie parcare
Curățenie spații comune
Echipamente moderne / silențioase
Garaj subteran
Grupuri sanitare amenajate și utilate
Îndepărtarea zăpezii
Îngrijirea spațiilor verzi
Lift cu destinație programată
Mochetă
Podea înălțată
Posibilitatea alegerii operator date / telefonie
Salubritate
Servicii de întreținere și reparații lifturi
Sistem climatizare 4 țevi
Sistem de ventilație
Stație de autobuz în apropiere
Stație de metrou în apropiere
Stație de tramvai în apropiere
Vedere spre oraș
Vestiar
Mihnea Georgescu - ART BIRO
Mihnea Georgescu
office consultant

0720 334 077


Solicită chiar acum o vizionare
Telefon
Sună acum Solicită vizionare
Necesare:

Site-ul nu poate funcționa corect fără aceste cookie-uri. Vezi cookie-urile

Statistică:

Strângem statistici anonime despre voi, vizitatorii unici, pentru a vă îmbunătăți experiența dumneavoastră. Vezi cookie-urile

Marketing:

Pentru a ne promova mai eficient serviciile noastre, folosim cookies pentru a vă identifica și a vă oferi proprietăți și servicii personalizate. Vezi cookie-urile

Acest site folosește cookies, află detalii. Alege ce tipuri de cookies dorești să permitem: