ID CP2821335

Zero comision, 145-439mp birou Grozavesti - Splai, 5 minute metrou

ID CP2821335

2,015 € + 21% TVA

Spațiu de birouri de închiriat
Grozavesti, Bucuresti
237 mp

Imobil cu functiune birouri localizat in proximitatea metroului Grozavesti, ofera un bun raport pret - calitate si o priveliste placuta catre raul Dambovita. In imediata vecinatate regasim majoritatea serviciilor ce sporesc confortul angajatului.

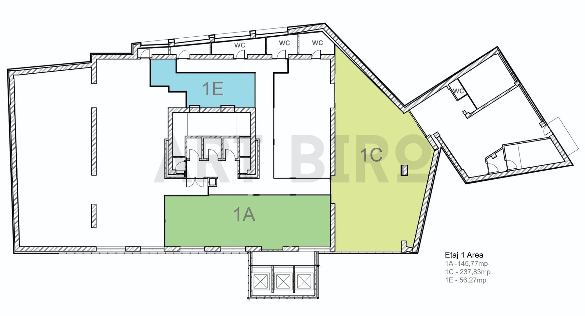
Spatiul disponibil: etaj 1 - 145mp, 237mp sau 439mp (module individuale, inchiriabile separat sau comasat);

Suplimentar: etaj 6 - 218mp, format flexibil pentru reconfigurare si compus momentan din 2 birouri individuale, spatiu deschis, bucatarie si toaleta; etaj 7 - 280mp, spatiu deschis, sala sedinte, bucatarie si grupuri sanitare exclusive.

Pretul chiriei este de 8.5 eur/mp (etaj 1) sau 11 eur/mp (niveluri superioare), iar costuri administrative in valoare de 3.6 eur/mp, se adauga consumul de utilitati si TVA.

Solutii de parcare in proximitate, sub forma de abomanent lunar, pret 85 eur/ unitate/ luna.

Cladirea dispune de autorizatie ISU, climatizare (chiller si centrala termica), 3 lifturi de mare viteza, serviciu administrare, receptie, paza umana 24/7, monitorizare.

Accesul catre servicii transport se face rapid, distanta mers statie STB/ Metrou: 1/ 5 min ([M] Grozavesti).

Utilitati contorizate separat/ pro-rata, costurile fiind disponibile pentru evaluare.

Consultanta oferita pe intregul parcurs al procesului de relocare/ acomodare birou (analiza comparativa oferte, vizionari, clauze contractuale, servicii suport) este gratuita.

Citește mai mult

  • Tip imobil
    Clădire birouri
  • Etaj
    1
  • Suprafață utilă
    237 mp
  • Disponibilitate
    Imediat
  • Suprafață minimă
    147 mp
  • Suprafață maximă
    237 mp
  • Suprafață totală birouri
    237 mp
  • Compartimentare spațiu
    Flexibil
  • Număr etaje clădire
    15

Facilități

Acces pentru persoane cu dizabilități
Administrare și management imobiliar
Afișare logo pe clădire
Cafenea la parter
Centru comercial în apropiere
Consumabile grupuri sociale
Contorizare separată
Curățenie exterioară
Curățenie parcare
Curățenie spații comune
Îndepărtarea zăpezii
Îngrijirea spațiilor verzi
Posibilitatea alegerii operator date / telefonie
Servicii de întreținere și reparații lifturi
Sistem de ventilație
Stație de autobuz în apropiere
Stație de metrou în apropiere
Vedere spre oraș
Mihnea Georgescu - ART BIRO
Mihnea Georgescu
office consultant

0720 334 077


Solicită chiar acum o vizionare
Telefon
Sună acum Solicită vizionare
Necesare:

Site-ul nu poate funcționa corect fără aceste cookie-uri. Vezi cookie-urile

Statistică:

Strângem statistici anonime despre voi, vizitatorii unici, pentru a vă îmbunătăți experiența dumneavoastră. Vezi cookie-urile

Marketing:

Pentru a ne promova mai eficient serviciile noastre, folosim cookies pentru a vă identifica și a vă oferi proprietăți și servicii personalizate. Vezi cookie-urile

Acest site folosește cookies, află detalii. Alege ce tipuri de cookies dorești să permitem: