ID CP2070502

Zero comision, 127-334mp birou Gara de Nord, M. Transporturilor, 3'[M]

ID CP2070502

1,651 €

Spațiu de birouri de închiriat
Gara de Nord, Bucuresti
127 mp

Imobil cu functiune birouri edificat in anul 2011 in zona Garii de Nord - Dinicu Golescu, ofera conditii optime de acomodare companiilor ce vizeaza zona centrala a orasului. Gradul sporit de luminozitate naturala, echipamentele moderne, facilitatile accesibile in proximitatea cladirii ofera un plus de confort angajatului.

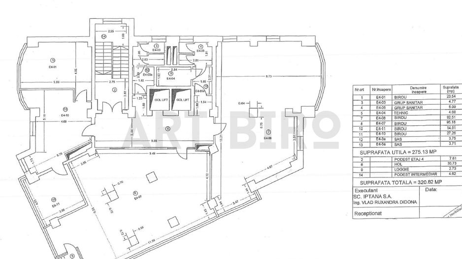
Spatii disponibile: etaj 5 - disponibil integral sau fractionat (spatiu deschis de 122, 127 si 87mp cu 3 partitii, doua grupuri sanitare duble b/f, spatiu depozitare/ tehnic). Se pot preda mobilate, in functie de stocul disponibil. Suplimentar: demisol - 93mp (spatiu deschis, ferestre mari).

Pretul chiriei este de 13 eur/mp (9 eur/mp pentru demisol), iar costurile administrative in valoare de 4.5 eur/mp. Se aloca 2 locuri de parcare/ etaj - 95 eur/ unitate. Se adauga TVA.

Cladirea dispune de autorizatie ISU, climatizare prin ventiloconvectoare (sistem 2 tevi), serviciu receptie, monitorizare si paza (24/7), acces card, sistem alarma, senzori detectie, lift, parcare subterana si supraterana. Renovare integrala in anul 2024.

Accesul catre servicii transport se face rapid, distanta mers statie Metrou ([M] Gara de Nord) - 3 minute / STB - 1 minut.

Utilitati contorizate separat/ pro-rata, costurile fiind disponibile pentru evaluare.

Consultanta oferita pe intregul parcurs al procesului de relocare/ acomodare birou (analiza comparativa oferte, vizionari, clauze contractuale, servicii suport) este gratuita.

Citește mai mult

  • Tip imobil
    Clădire birouri
  • Etaj
    5
  • Număr camere
    5
  • Număr băi
    2
  • Suprafață utilă
    127 mp
  • Disponibilitate
    Imediat
  • Suprafață minimă
    127 mp
  • Suprafață totală birouri
    127 mp
  • Compartimentare spațiu
    Flexibil

Facilități

Administrare și management imobiliar
Afișare logo pe clădire
Cafenea la parter
Cameră server
CCTV
Centrală termică
Ferestre care se deschid
Lift cu destinație programată
Mochetă
Parcare deschisă
Posibilitatea alegerii operator date / telefonie
Sistem climatizare 2 țevi
Sistem de alarmă
Stație de autobuz în apropiere
Stație de metrou în apropiere
Stație de tramvai în apropiere
Vedere spre oraș
Mihnea Georgescu - ART BIRO
Mihnea Georgescu
office consultant

0720 334 077


Solicită chiar acum o vizionare
Telefon
Sună acum Solicită vizionare
Necesare:

Site-ul nu poate funcționa corect fără aceste cookie-uri. Vezi cookie-urile

Statistică:

Strângem statistici anonime despre voi, vizitatorii unici, pentru a vă îmbunătăți experiența dumneavoastră. Vezi cookie-urile

Marketing:

Pentru a ne promova mai eficient serviciile noastre, folosim cookies pentru a vă identifica și a vă oferi proprietăți și servicii personalizate. Vezi cookie-urile

Acest site folosește cookies, află detalii. Alege ce tipuri de cookies dorești să permitem: