ID CP2300543

Zero comision, 199mp spatiu birou - comercial, Piata Unirii

ID CP2300543

3,920 €

Spațiu de birouri de închiriat
P-ta Unirii, Bucuresti
199 mp
2006

Imobil cu functiune birouri construit in 2006 in imediata apropiere a Piatei Unirii - Splai Unirii, ofera prin locatie si expunere conditii optime pentru acomodarea unui showroom de prezentare sau activitati cu public (exceptand horeca, supermarket.

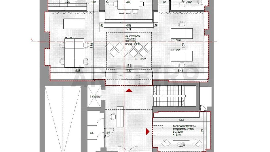
Spatiul disponibil se afla la parterul cladirii si este compus din doua zone totalizand 199mp (conform releveu anexat) cu 4 partitii si un spatiu deschis, grup sanitar dublu, bucatarie mobilata. Se aloca 1-2 locuri parcare in subteranul cladirii, iar suplimentar se pot contracta in parcarea Cocor aflata la cativa sute de metri de proprietate (pret 80 eur/unitate + TVA).

Pretul chiriei este de 20 eur/mp (nu se adauga TVA), iar costuri administrare 4 eur/mp + TVA. Parcare subterana 100 eur/ unitate.

Cladirea dispune de climatizare (ventiloconvectoare), zona de receptie, lift, paza proprie si monitorizare 24/7, senzori detectie, parcare subterana, performanta energetica ridicata.

Accesul catre servicii transport se face rapid, distanta mers statie STB/ Metrou: 1/ 2min (M Unirii).

Utilitati contorizate separat/ pro-rata, costurile fiind disponibile pentru evaluare.

Consultanta oferita pe intregul parcurs al procesului de relocare/ acomodare birou (analiza comparativa oferte, vizionari, clauze contractuale, servicii suport) este gratuita.

Citește mai mult

  • Tip imobil
    Clădire birouri
  • Etaj
    Parter
  • Număr camere
    4
  • Număr băi
    2
  • Suprafață utilă
    199 mp
  • Disponibilitate
    imediat
  • Suprafață totală birouri
    199 mp
  • Compartimentare spațiu
    Flexibil
  • An construcție
    2006
  • Construcție nouă
    Da
  • Număr etaje clădire
    5
  • Număr subsoluri
    1

Facilități

Afișare logo pe clădire
Centrală termică
Centru comercial în apropiere
Ferestre care se deschid
Garaj subteran
Grupuri sanitare amenajate și utilate
Mochetă
Posibilitatea alegerii operator date / telefonie
Sistem climatizare 2 țevi
Stație de autobuz în apropiere
Stație de metrou în apropiere
Vedere spre oraș
Mihnea Georgescu - ART BIRO
Mihnea Georgescu
office consultant

0720 334 077


Solicită chiar acum o vizionare
Telefon
Sună acum Solicită vizionare
Necesare:

Site-ul nu poate funcționa corect fără aceste cookie-uri. Vezi cookie-urile

Statistică:

Strângem statistici anonime despre voi, vizitatorii unici, pentru a vă îmbunătăți experiența dumneavoastră. Vezi cookie-urile

Marketing:

Pentru a ne promova mai eficient serviciile noastre, folosim cookies pentru a vă identifica și a vă oferi proprietăți și servicii personalizate. Vezi cookie-urile

Acest site folosește cookies, află detalii. Alege ce tipuri de cookies dorești să permitem: