ID CP1100507

Zero comision, 100-202mp birou Foisor, paza, parcare, 10 min' metrou

ID CP1100507

2,424 € + 21% TVA

Spațiu de birouri de închiriat
Mosilor, Bucuresti
202 mp
2008

Imobil cu functiune birouri localizat in zona Calea Mosilor - Foisorul de Foc, ofera conditii optime de acomodare companiilor ce vizeaza zona centrala, avand o buna conexiune cu mijloacele de transport in comun si potential pentru activitate de birou/ cursuri cu public. Viitorul locatar poate beneficia de o sala de conferinta ce poate fi utilizata gratuit, precum si de o terasa circulabila pentru evenimente corporate/ private (pergola retractabila, pardoseala tartan).

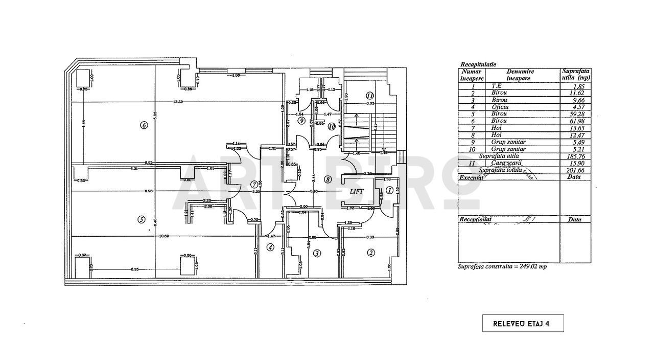
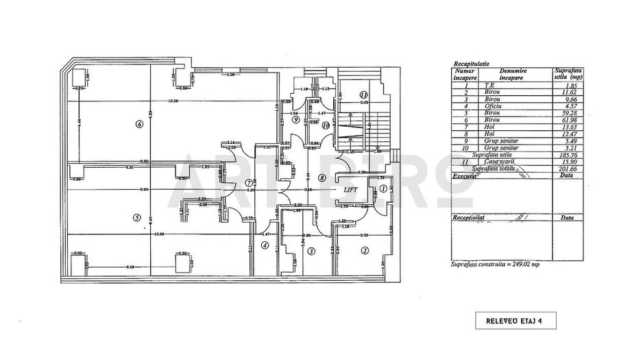
Spatiu disponibil: etaj 4 (integral) in suprafata de 202mp compus (conform releveu anexat) din 4 partitii (62, 59, 12, 10mp), oficiu mobilat, hol receptie, 2 grupuri sanitare. Spatiul este igienizat si se preda cu retea date. Optiunea de a prelua fractionat etajul (incepand de la 100mp) se poate discuta in functie de solicitare

Pretul chiriei este de 12 eur/mp, iar costurile administrative in valoare de 2.5 eur/mp. 2 locuri parcare alocate suprateran, cu bariera, 100 eur/ unitate. Se aduga TVA.

Cladirea dispune de climatizare (ventiloconvectoare), statie de tratare a apei, serviciu paza 24/7, administrare si receptie, generator sisteme vitale, lift, senzori detectie, control acces cu cartela magnetica, supraveghere video, parcare proprie securizata.

Accesul catre servicii transport se face rapid, distanta mers statie STB/ Metrou: 2/ 10 min ([M] Obor).

Utilitati contorizate separat/ pro-rata, costurile fiind disponibile pentru evaluare.

Consultanta oferita pe intregul parcurs al procesului de relocare/ acomodare birou (analiza comparativa oferte, vizionari, clauze contractuale, servicii suport) este gratuita.

Citește mai mult

  • Tip imobil
    Clădire birouri
  • Etaj
    4
  • Număr camere
    4
  • Număr băi
    2
  • Suprafață construită
    202 mp
  • Suprafață utilă
    202 mp
  • Disponibilitate
    imediat
  • Suprafață minimă
    100 mp
  • Suprafață maximă
    202 mp
  • Suprafață totală birouri
    202 mp
  • Compartimentare spațiu
    Flexibil
  • Parcări suprafață disponibile
    2
  • An construcție
    2008
  • Construcție nouă
    Da
  • Număr etaje clădire
    5
  • Număr subsoluri
    1

Facilități

Acces securizat parcare
Administrare și management imobiliar
Afișare logo pe clădire
Cameră server
Contorizare separată
Control acces securizat pe bază de cartele
Control al accesului pe zone
Curățenie exterioară
Curățenie parcare
Curățenie spații comune
Detectoare de fum/incendiu
Extinctoare sprinkler
Ferestre care se deschid
Grupuri sanitare amenajate și utilate
Îndepărtarea zăpezii
Îngrijirea spațiilor verzi
Lift cu destinație programată
Parchet
Pază permanentă
Posibilitatea alegerii operator date / telefonie
Salubritate
Servicii de întreținere și reparații lifturi
Sistem climatizare 2 țevi
Sistem de alarmă
Sistem de ventilație
Stație de autobuz în apropiere
Stație de metrou în apropiere
Stație de tramvai în apropiere
Tavan fals
Mihnea Georgescu - ART BIRO
Mihnea Georgescu
office consultant

0720 334 077


Solicită chiar acum o vizionare
Telefon
Sună acum Solicită vizionare
Necesare:

Site-ul nu poate funcționa corect fără aceste cookie-uri. Vezi cookie-urile

Statistică:

Strângem statistici anonime despre voi, vizitatorii unici, pentru a vă îmbunătăți experiența dumneavoastră. Vezi cookie-urile

Marketing:

Pentru a ne promova mai eficient serviciile noastre, folosim cookies pentru a vă identifica și a vă oferi proprietăți și servicii personalizate. Vezi cookie-urile

Acest site folosește cookies, află detalii. Alege ce tipuri de cookies dorești să permitem: