ID CP1907404

Zero comision, 290mp birou mobilat, terasa, Stirbei - Cismigiu, 15'[M]

ID CP1907404

4,350 €

Spațiu de birouri de închiriat
Stirbei Voda, Bucuresti
290 mp

Proiect premium birouri inaugurat la standarde clasa A in anul 2004 in proximitatea Parcului Cismigiu - Stirbei Voda, ofera conditii optime de acomodare companiilor ce vizeaza pentru viitorul sediu zona ultracentrala a orasului, un design aparte si posibilitatea relocarii "plug & work".

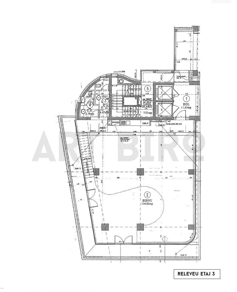
Spatiul disponibil (martie 2024) este dispus pe etajele 3 si 4 (duplex) si are o suprafata inchiriabila de 290mp, formatul (conform reveleu anexat) cuprinzand: etaj 3 - hol receptie, spatiu deschis 134mp, grup sanitar dublu (b/f), oficiu, terasa; etaj 4 - spatiu deschis 90mp, grup sanitar dublu. Se preda igienizat, cu mobilierul si partitiile existente, inclusiv bucatarie utilata. Suplimentar si fara costuri, terasa cu priveliste deosebita.

Pretul chiriei este de 15 eur/mp, iar costurile administrative in valoare de 5 eur/mp (incluzand costurile climatizarii vara/ iarna, suplimentar se va plati consumul de electricitate). Se adauga TVA.

Cladirea dispune de climatizare prin ventiloconvectoare (sistem 4 tevi nou), serviciu receptie, monitorizare si paza, acces card, sistem alarma, senzori detectie, lift, parcare subterana (tip klaus).

Accesul catre servicii transport se face rapid, distanta mers statie STB/ Metrou: 1/ 15 min ([M] Izvor sau [M] Romana).

Utilitati contorizate separat/ pro-rata, costurile fiind disponibile pentru evaluare.

Consultanta oferita pe intregul parcurs al procesului de relocare/ acomodare birou (analiza comparativa oferte, vizionari, clauze contractuale, servicii suport) este gratuita.

Citește mai mult

  • Tip imobil
    Clădire birouri
  • Etaj
    3, 4
  • Număr camere
    2
  • Număr băi
    2
  • Suprafață construită
    290 mp
  • Număr terase
    1
  • Suprafață utilă
    290 mp
  • Disponibilitate
    Imediat

Facilități

Posibilitatea alegerii operator date / telefonie
Mihnea Georgescu - ART BIRO
Mihnea Georgescu
office consultant

0720 334 077


Solicită chiar acum o vizionare
Telefon
Sună acum Solicită vizionare
Necesare:

Site-ul nu poate funcționa corect fără aceste cookie-uri. Vezi cookie-urile

Statistică:

Strângem statistici anonime despre voi, vizitatorii unici, pentru a vă îmbunătăți experiența dumneavoastră. Vezi cookie-urile

Marketing:

Pentru a ne promova mai eficient serviciile noastre, folosim cookies pentru a vă identifica și a vă oferi proprietăți și servicii personalizate. Vezi cookie-urile

Acest site folosește cookies, află detalii. Alege ce tipuri de cookies dorești să permitem: